

“霸道”漿液過濾篩是我公司在原漿液專用篩的基礎上,通過技術改進和大量試驗,獨立開發研制的一款篩分設備。該產品為單層網結構,上框為加高敞開式設計。底框和振動體連為一體,減輕了電機激振力的消耗,具有產量大、耗電低的優勢。
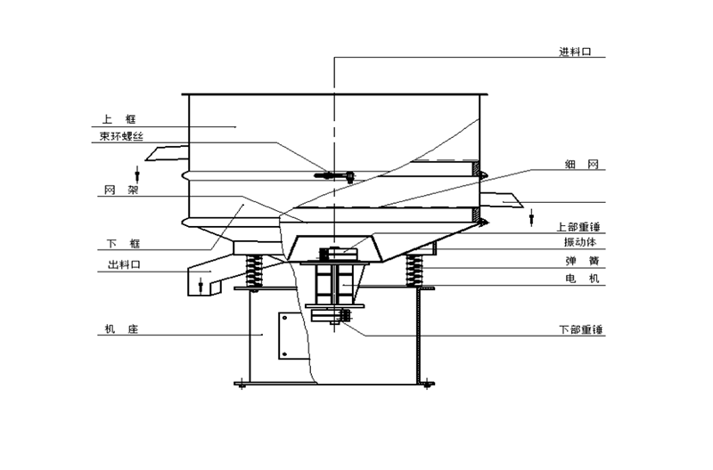
結構形式

產品特點
1.電機采用鋁制外殼,散熱快,免維護,使用壽命長。
2.敞口式外觀設計,易于觀察篩網上面物料的運行軌跡,篩網清洗方便。
3.采用國際品牌振動電機,具有噪聲低,體積小,重量輕,耗電量小,過載能力強,外觀精細,屬新一代環保產品。
4.無機械動作,不需保養,可單層或雙層使用。
5.網孔不堵塞,無濺料現象,雜質粗料自動排出,可連續作業。
6.與原料接觸部位皆采用SUS304材質制作,外形美觀
產品用途
固液分離:本設備可單層、雙層使用,能十分有效的處理固、液混合物料,快速實現固液分離,并篩選過濾出不同目數的物料。
除雜:本設備可除去大量液體物料中大小不同的小部分雜料,進行快速分離。
憑借新型立式振動電機軸上下兩端的偏心重錘,運轉起來后產生偏心力,這種偏心力同時分解出三種力(即:水平力、垂直力和傾斜力),此三種力又同時被傳到篩面上,使物料在篩面上做出規律性運動,即是篩分的過程。
上下重錘夾角的調整,可改變物料在篩面上的運行軌跡,從而調整生產過程中的篩分效果。

上下重錘相位角調整方法
根據各種原料的不同性質,可以調整上下重錘相位角,有效改變原料的運動軌跡,延長或縮短原料在篩網上的時間,以達到**佳篩分效果。
調整重錘部分,只需調整下部重錘,上部重錘不需要變動。例如當上下重錘之夾角由0°調整到15°時,上部重錘不需要變動,須沿著電機轉動方向,調整下部重錘比上部重錘**15°,上緊螺絲即可。
換網方法
(1)把束環螺絲松掉,卸下上框、網架。
(2)網架放在一個平臺上,放平穩,去掉網架膠條,松開上下兩個網架束緊器,取下已破損的篩網。
(3)裁下所需目數的篩網,篩網尺寸應比網架上部外徑尺寸大10厘米(大于網架高度即可)
(4)把裁好的篩網平鋪在網架上,各邊到網架距離均勻。
(5)先裝下部網架束緊器,略微上緊,拉一下篩網邊沿,使篩網均勻平鋪在網架上,并保證各邊完全被束緊器夾住,然后完全上緊。用手指按一下,篩網應有一定的張緊力,若過松應重新裝一次。
(6)安裝上部網架束緊器,束緊器螺絲應與**個束緊器螺絲成十字型布置,并完全上緊。
(7)沿網架邊沿裁去多余篩網,在網架上套好密封膠條。
(8)把換好篩網的網架放到篩機相應位置,各邊距離應均勻,扣上上框,上緊束環即可。
注:安裝網架束緊器應先安裝下面的,再安裝上面的,順序不能顛倒,也不能同時安裝上下束緊器。另外注意安全,別讓篩網邊沿鋼絲劃破手指。
機型 | 功率(kw) | 篩面直徑(mm) | 有效面積(mm) | 層數 |
BD - 800 | 0.37 | 760 | 0.4534 | 1 |
BD - 1000 | 0.4 | 1000 | 0.785 | 1 |
BD - 1200 | 0.45 | 1130 | 1.0023 | 1 |

典型案例
箭牌衛浴、惠達衛浴、恒潔衛浴樂華潔具、廣東新明珠陶瓷集團、蒙娜麗莎陶瓷、新中源陶瓷、馬可波羅、正大陶瓷有限公司、鷹牌陶瓷、遼寧金地陽(新中源)、廈門欣意盛
主要應用于陶瓷行業(泥漿、釉料)、油漆行業、涂料行業,以及其它行業的固液篩分與過濾。

根據客戶上下游產品及現場空間,修改設備尺寸,定制設備結構,滿足客戶需求。
公司從事篩分及輸送設備20年,20年以上工作經驗的工程師2名,給客戶提供專業的建議和設備解決方案。
設備的質量,在原材料采購階段已經決定,所以我們有嚴格的采購體系和質檢體系,關注源頭細節。
公司建立了完善客戶回訪體系和售后服務體系,售后團隊響應及時,省內24小時奔赴現場,省外72小時奔赴現場。
源頭設備生產廠家,無中間環節,價格公正合理,讓客戶獲得實實在在的利益,獲得更多的增值服務。
合作只是起點,服務沒有終點,一次合作,終身朋友。凡購買恒宇公司的設備,提供終身的技術支持和設備維修服務。
使用過程中,如有任何疑問可隨時致電或在線咨詢。0373-5712316
